bredel.de sign
bredel.de sign

Erfolg ist planbar

Apotheken

 

 

 

 

 

 

Petri Apotheke
Apotheker Brigitte und Markus Mießner, Dortmund Fußgängerzone

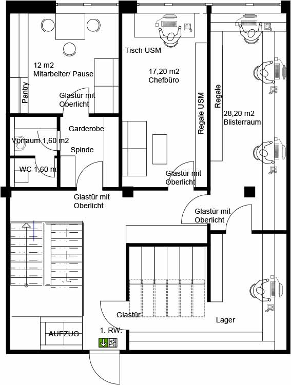
Leistung: Neueinrichtung 3 geschoßiger Grundriss, vorher Umzug der bestehenden Apotheke in eine
Containerlösung. Konzeption Innenarchitektur, Beleuchtungsplanung, Klima, Heizung Lüftung,
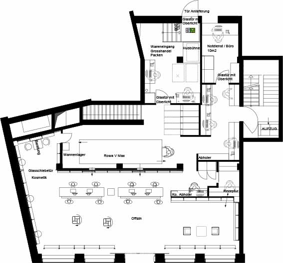
Möbeldesign, Eingangssituationen. Der großzügige Beratungsraum kann durch eine 3 Meter breite satinierte Glasschiebetür abgetrennt werden. Warenanlieferung mit Hubbühne,
Interner Lastenaufzug, Blisterraum für Heimbelieferung.

Neubau:

Offizin:
Kundenverkehrsfläche:

Rowa V Max 5410 x 3,5 x 1,65 m

neu 70,40 m²

neu 50,60 m²

zum Anfang

zur Übersicht