bredel.de sign
bredel.de sign

Erfolg ist planbar

Apotheken

 

 

 

 

 

 

Grundriss vorher

Nobel Apotheke
Apothekerin Ingrid Mumperow, Leverkusen

Leistung: Komplettumbau bei laufendem Betrieb, Konzeption, Innenarchitektur, Beleuchtungsplanung,
Klima, Möbeldesign, Verlegung von Rezeptur, Büro Notdienst, Labor, neue Beratungskabine,
neue Fußpflegekabine, 31 Ziehschränke weniger.

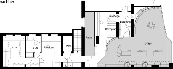
Umbau:

Offizin:
Kundenverkehrsfläche:
Vergrösserung der Freiwahl:

Rowa Select 6,00 x 3,0x 1,3 m

alt 33,80 m², neu
47,00 m²
alt 18,20 m², neu
29,00 m²
ca. 120 %

Grundriss nachher

zum Anfang

zur Übersicht