bredel.de sign
bredel.de sign

Erfolg ist planbar

Apotheken

 

 

 

 

 

 

Grundriss vorher

Mohren Apotheke
Apotheker Beate und Dr. Roland Vogelgesang, Wuppertal

Leistung: Komplettumbau bei laufendem Betrieb, Konzeption Innenarchitektur, Beleuchtungsplanung,
Klima, Möbeldesign, Grafik, Logoentwicklung, Drucksachen,
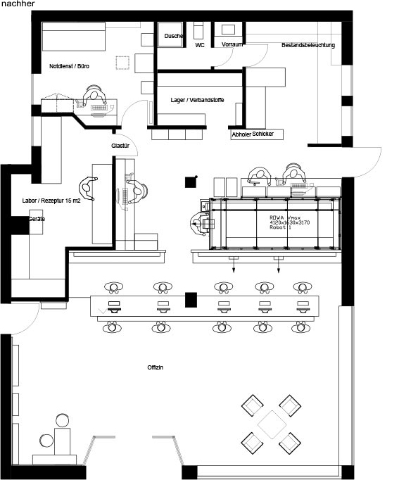
26 Schubsäulen weniger. Der Travertinboden im Offfizinbereich wurde nach hinten erweitert

Umbau:

Offizin:
Kundenverkehrsfläche:
Vergrösserung der Sichtwahl:
Vergrösserung der Freiwahl:

Rowa V Max 4120 x 3,20 x 1,65 m

alt 35,50 m², neu
47,10 m²
alt 37,40 m², neu
44,90 m²
ca. 250 %

gleich

Grundriss nachher

zum Anfang

zur Übersicht