bredel.de sign
bredel.de sign

Erfolg ist planbar

Apotheken

 

 

 

 

 

 

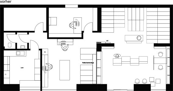
Grundriss vorher

Löwen Apotheke
Apothekerin Ruth Wahl

Leistung: Komplettumbau bei laufendem Betrieb, Konzeption Innenarchitektur, Beleuchtungsplanung,
Klima, Möbeldesign, Grafik, Logoentwicklung, Drucksachen,
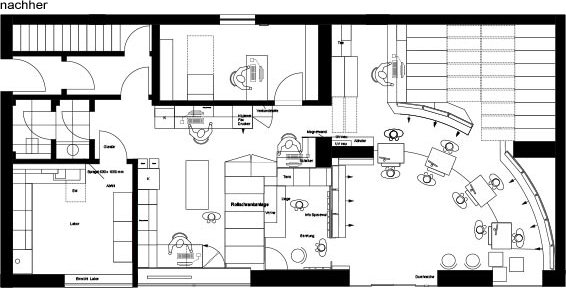
Obwohl sich die Offizin real nicht Vergrößert hat, wirkt sie wesentlich größer.
Ein zusätzlich gewonnener Beratungsraum von 6,5 m2 ermöglicht eine intensive, vertrauliche Beratung. Es wurden alle Arbeitsplätze hochwertig optimal gestaltet.

Umbau:

Offizin:
Kundenverkehrsfläche:
Vergrösserung der Sichtwahl:



alt 29,20 m², neu
29,50 m²
alt 16,40 m², neu
16,50 m²
ca. 250 %

Grundriss nachher

zum Anfang

zur Übersicht