bredel.de sign
bredel.de sign

Erfolg ist planbar

Apotheken

 

 

 

 

 

 

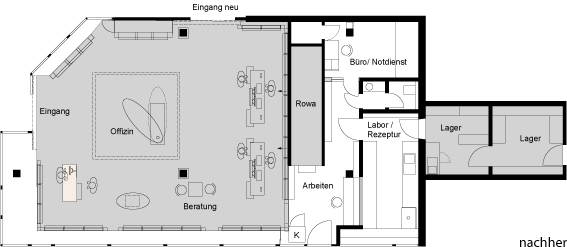
Grundriss vorher

Apotheke am Berliner Platz
Apothekerin Frau Magret Kühle Schläder, Ratingen

Leistung:

Konzeption, Innenarchitektur, Beleuchtungsplanung, Klima, Fassade, Planung und Ausführung der Möbel. Hinzunahme von einem Lagerraum Schaffung eines neuen Eingangs zum Ärztehaus,
Verlegung von Rezeptur, Büro / Notdienst, WC, 18 Schubsäulen weniger.


Umbau:

Rowa Select 5000 x 3,0x 1,3 m



Offizin:
Kundenverkehrsfläche:
Vergrößerung der Sichtwahl:
Vergrößerung der Freiwahl:

alt 38,00m², neu 91,80m²
alt 21,30 m², neu  70,50 m²
ca. 380 %
ca. 350 %

Grundriss nachher

zum Anfang

zur Übersicht