bredel.de sign
bredel.de sign

Erfolg ist planbar

Apotheken

 

 

 

 

 

 

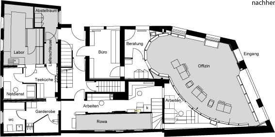
Grundriss vorher

Adler Apotheke
Apotheker Arndt Backhaus, Velbert Langenberg

Leistung: Komplettumbau bei laufendem Betrieb, Konzeption Innenarchitektur, Beleuchtungsplanung, Fassade, Fachwerkhaus von 1509, starker statischer Eingriff durch Entfernung von alten Fachwerk- und Bruchsteinmauern. 13 Schubkastensäulen weniger , Vergrößerung durch Hinzunahme des Flur und eines Lagerraumes, ca. 34 m2, Verlegung von Labor, Rezeptur, Büro, Wc, Neuer Beratungsraum.

Umbau:

Offizin:
Kundenverkehrsfläche:
Vergrösserung der Sichtwahl:
Vergrösserung der Freiwahl:

Rowa Select 6500 x 3,0 x 1,3 m

alt 21,00 m², neu
46,00 m²
alt 12,70 m², neu
31,10 m²
ca. 150 %

ca.
150 %

Grundriss nachher

zum Anfang

zur Übersicht